
HD tüüpi Euroopa tõstejõu ühekaarega kraanaga
Euroopa ühe jõuallika kraana on kompaktsed tõsteseadmed, mis on projekteeritud ja valmistatud vastavalt FEM-i ja DIN-standardile, mis on arenenud tehnoloogia ja ilusa kujundusega. Jaotatakse üldist tüüpi ja vedrustuse tüübiks, toetades Euroopa standardsete elektriliste tõstukite kasutamist, mis sobivad töökoja ja ladustamismaterjali käsitsemiseks, suurte detailide täppispaigaldamiseks ja muudes kohtades.
HD tüüpi Euroopa tõstejõu ühekaarega kraanaga
Lühikirjeldus:
Euroopa ühe jõuallika kraana on kompaktsed tõsteseadmed, mis on projekteeritud ja valmistatud vastavalt FEM-i ja DIN-standardile, mis on arenenud tehnoloogia ja ilusa kujundusega. Jaotatakse üldist tüüpi ja vedrustuse tüübiks, toetades Euroopa standardsete elektriliste tõstukite kasutamist, mis sobivad töökoja ja ladustamismaterjali käsitsemiseks, suurte detailide täppispaigaldamiseks ja muudes kohtades.

Seda võiks laialdaselt kasutada masinate tootmisel, metallurgia, nafta, petrification, sadama, raudtee, tsiviillennunduse, toidu, paberi valmistamise, ehituse, elektroonikatööstuse töökoda, ladu ja muude materjalide käitlemise olukordades, esp. mida kasutatakse materjalide käitlemisel, mis vajavad täpset positsioneerimist, suurte komponentide täpne kokkupanek olukord.

Üksikasjalikud pildid:

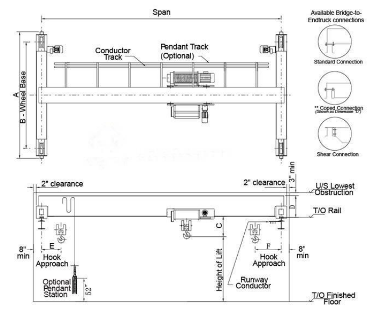
Visand joonis:

Tehnilised parameetrid:
Span | m | 7.5 | 10.5 | 13.5 | 16.5 | 19.5 | 22.5 | 25,5 |
Võimsus | t | 1 ~ 12,5t | ||||||
Kogukaal | kg | 1781 ~ 12086 | ||||||
Käru kaal | kg | 405 ~ 740 | ||||||
Max Ratta koormus | kn | 13,5 ~ 90,94 | ||||||
Reisirong | P24 ~ P43 | |||||||
Tõstekiirus | m / min | 0,8 / 5 | 0,8 / 5 | 0,8 / 5 | 0,8 / 5 | 0,8 / 5 | 0,8 / 5 | 0,8 / 5 |
Tõstekõrgus | m | ≥ 6 | ≥ 6 | ≥ 6 | ≥ 6 | ≥ 6 | ≥ 6 | ≥ 6 |
Mootori võimsus kokku | kw | 4.31 | 4.31 | 4.31 | 4.31 | 4,67 | 4,67 | 4,67 |
Kraana kiirus | m / min | 3-30 | 3-30 | 3-30 | 3-30 | 3-30 | 3-30 | 3-30 |
Käru kiirus | m / min | 2-20 | 2-20 | 2-20 | 2-20 | 2-20 | 2-20 | 2-20 |
Töökohustus | M5 / A5 | |||||||


English
Deutsch
فارسی
Malti
Svenska
Català
türkiye
Srbija jezik (latinica)
Bai Miaowen
ไทย
Cymraeg
Ελληνικά





